Kjøttbasaren

Sted
Bergen

2025

Kunde
Le Pintxos & Brasserie

Kreditering
VILL

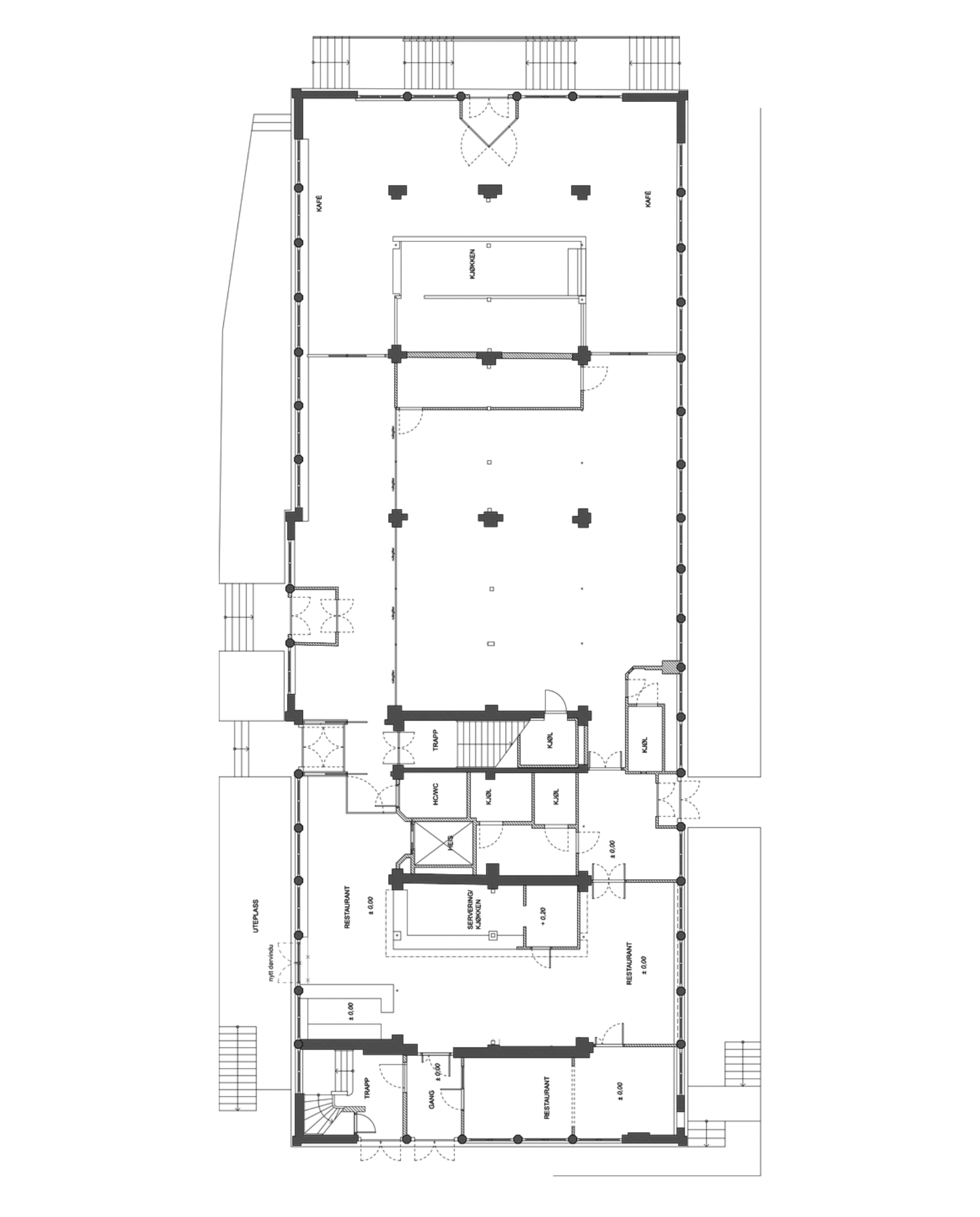
Kjøttbasaren er et av Bergens mest markante bygg, tegnet av arkitekt Conrad Fredrik von der Lippe og ferdigstilt i 1877.

Prosjektet handler om å videreføre byggets rolle som levende kulturminne gjennom skånsom tilpasning til ny bruk. VILL har utarbeidet løsninger som styrker forbindelsen mellom Vetrlidsallmenningen og byggets indre liv ved å åpne et nytt inngangsparti og tilrettelegge for universell adkomst. Innvendig fjernes nyere innredning for å gjenskape romlighet og tydeliggjøre den historiske arkitekturen. Tiltakene er reversible og utført i dialog med fylkeskonservatoren, med mål om å bevare og aktivisere Kjøttbasaren for fremtiden.

Previous
Previous

Lounge SK Brann

Next
Next

Baronsgården