Voss Folkemuseum

Sted
Voss

2021

Kunde
Voss Folkemuseum

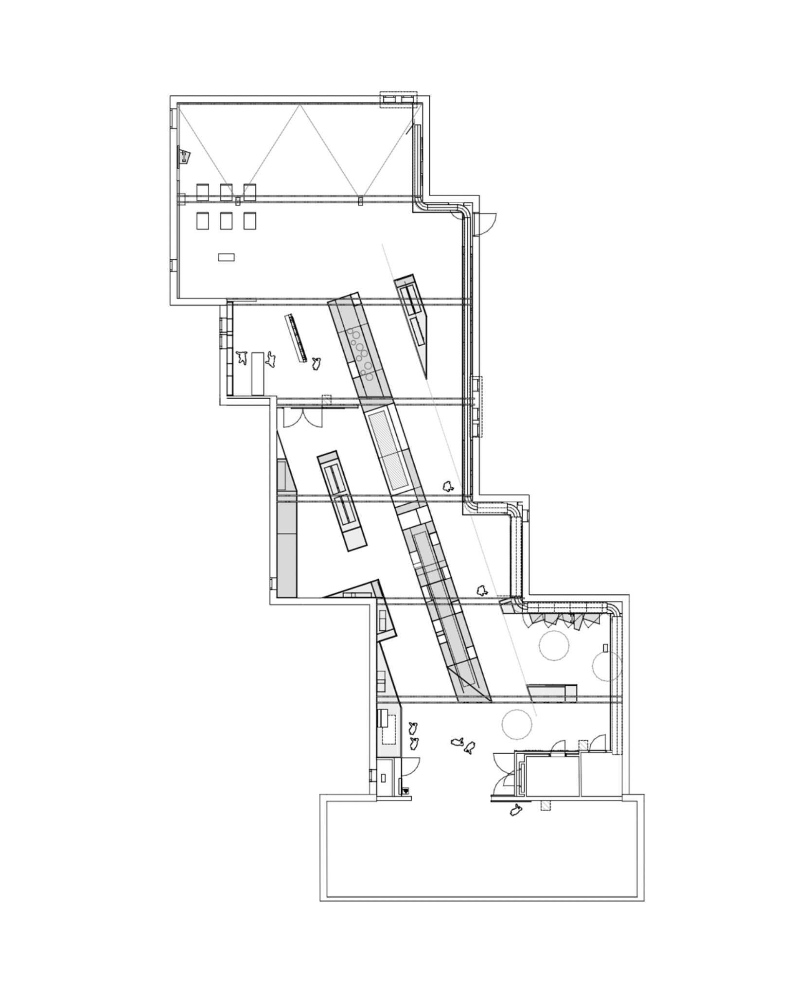
Permanenutstillingen “Vindu mot Voss” åpner bygden i et bredt perspektiv der fortid, nåtid og framtid møtes. En stor bildeprojeksjon fyller gavlveggen og gir et storslått utsyn som setter rammen for en gjestfri og romslig utstilling.

Designet deler rommet i soner langs en tydelig tidsakse og skaper en helhetlig opplevelse der Vosseånden står sentralt. Utstillingen kombinerer gjenstander, taktile elementer og digitale virkemidler for å engasjere flere sanser.

Fleksible og gjenbrukbare løsninger gjør konseptet robust og fremtidsrettet, og inviterer publikum til både utforsking og fordypning.

Previous
Previous

Fanteria

Next
Next

Parallelloppdrag Straume